Porte intérieure 63, 73, 83, 93 : quelle largeur choisir selon la pièce ?

Lorsqu’on parle de portes intérieures, la largeur passe souvent au second plan derrière le design, la couleur ou la finition. Pourtant, le confort d’utilisation au quotidien, l’accessibilité, la circulation dans une maison ou un appartement dépendent directement du choix entre une porte de 63, 73, 83 ou 93 cm.
Une porte trop étroite peut rendre difficiles les passages avec des meubles, une poussette ou un fauteuil. Une porte trop large, mal anticipée, peut créer des problèmes d’intégration dans les cloisons, de dégagement ou de respect des normes.
En France, la plupart des constructions neuves s’appuient sur des dimensions normalisées, avec des largeurs standard de 63, 73, 83 et 93 cm. Il ne s’agit pas de chiffres choisis au hasard : ces largeurs correspondent à des usages précis selon les pièces et les besoins de passage.
L’objectif de cet article est simple : expliquer clairement pourquoi ces largeurs existent, dans quelles pièces les utiliser, et comment faire le bon choix dès la conception ou la rénovation, en particulier lorsque l’on installe des blocs-portes affleurants ou des portes design comme celles proposées par La Lourde.

Les largeurs standard en France
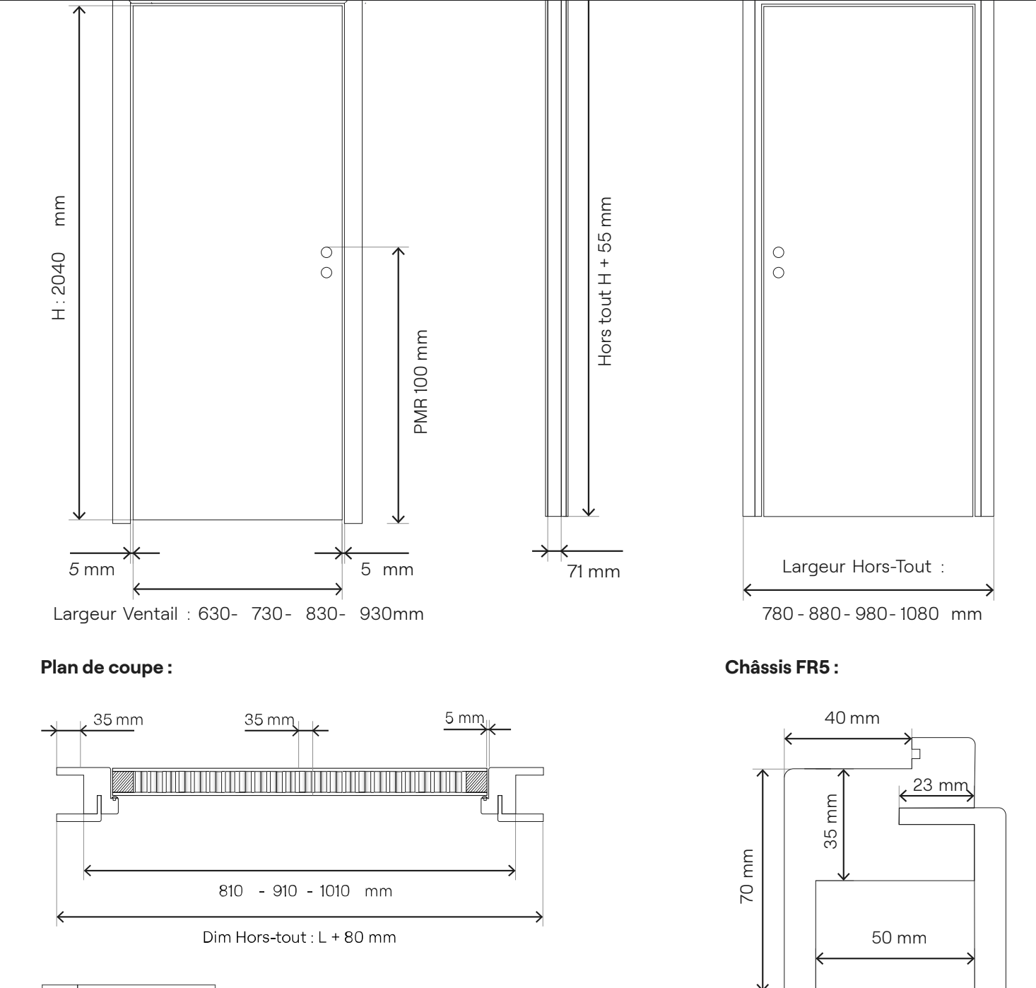
On ne vous apprend rien, dans la majorité des habitations françaises, la hauteur des portes intérieures est de 204 cm. Pour les largeurs, quatre dimensions dominent le marché :
63, 73, 83 et 93 cm. Ces mesures correspondent à la largeur du vantail, c’est-à-dire la partie mobile de la porte.
Ces largeurs ne sont pas interchangeables. Elles ont été standardisées pour répondre aux contraintes des pièces, des circulations, des règles d’accessibilité et des habitudes de construction. Lorsqu’on rénove ou construit, bien choisir la largeur permet d’assurer une ergonomie durable et adaptée aux besoins de chaque pièce.
Une porte trop étroite peut gêner les mouvements quotidiens, rendre la pièce difficile d’accès ou ralentir un déménagement. À l’inverse, une porte trop large peut devenir encombrante dans un couloir étroit ou mal proportionnée dans une petite pièce. Trouver la bonne largeur est donc un équilibre technique et pratique.
Porte 63 cm : la largeur compacte pour les petites surfaces
Pour commencer, la largeur de 63 cm est la plus étroite des standards courants. Son rôle est de desservir les petites pièces techniques et les zones où chaque centimètre compte. On la retrouve très souvent dans les WC indépendants de petite taille, les celliers, les placards, les débarras ou certaines zones de service.

Dans ces espaces, la priorité est d’optimiser la surface disponible plutôt que de faciliter le passage d’objets volumineux. Une porte de 63 cm permet de conserver un mur plus large pour installer un meuble, une vasque, un ballon d’eau chaude ou une étagère.
En revanche, cette largeur reste peu confortable. Une personne portant un gros sac, déplaçant un meuble, ou utilisant une aide à la mobilité aura du mal à traverser ce type d’ouverture. Il est souvent conseillé, lorsqu’on le peut, de passer à une porte de 73 cm pour améliorer le confort d’usage sans impacter fortement la surface des pièces.
Porte 73 cm : la largeur standard polyvalente
Parlons maintenant de la largeur de 73 cm qui a longtemps été la norme dominante dans les logements français. On la retrouve dans les chambres, les petites salles de bain, les bureaux et même certains dégagements. Cette largeur offre un bon équilibre entre confort de passage et optimisation de l’espace disponible dans les pièces.
Pour un usage quotidien classique, une porte de 73 cm permet de circuler sans difficulté particulière. La plupart des meubles standard passent sans problème, même s’il peut arriver que certains éléments plus volumineux, comme une grande armoire ou un canapé massif, nécessitent un passage par une porte plus large.
Dans les rénovations, conserver le 73 cm est souvent une solution pratique lorsque les cloisons sont déjà en place. Dans le neuf, il reste utilisé pour les pièces secondaires. Mais lorsqu’on souhaite anticiper l’évolution des besoins ou offrir un confort supérieur, on privilégiera plutôt la largeur supérieure.

Porte 83 cm : le nouveau standard du confort
Moins utilisé, le 83 cm s’impose progressivement comme le standard moderne dans les constructions actuelles. Il apporte un confort perceptible puisqu’on circule plus facilement, les meubles passent mieux, et la sensation d’espace dans les logements est renforcée.
Cette largeur est idéale pour les chambres principales, les salles d’eau plus généreuses, les circulations importantes et les pièces où le passage doit rester fluide. Elle répond mieux aux attentes actuelles en termes d’ergonomie, notamment pour les familles, les personnes âgées ou les projets de vie à long terme.
Beaucoup de maîtres d’œuvre et promoteurs choisissent désormais le 83 cm pour offrir un logement plus confortable ( notamment pour les villas, et grands projets d'hôtellerie ) sans modifier radicalement les plans. Associée à une porte affleurante, cette largeur apporte un style architectural plus contemporain, avec des volumes plus cohérents et une esthétique haut de gamme.

Porte 93 cm : la largeur généreuse et accessible
Enfin avec un vantail de 93 cm, on entre dans une catégorie supérieure ( celle pour les projets plus spécifiques ). Cette largeur offre une accessibilité très confortable et facilite grandement le passage de meubles, de poussettes, d’appareils électroménagers et de fauteuils roulants.
Elle est courante dans les pièces de vie comme le séjour, la cuisine ouverte, ou les grands couloirs. On la retrouve également dans les logements conçus pour offrir un niveau d’accessibilité élevé, ou dans les projets architecturaux haut de gamme où l’amplitude des portes fait partie de l’identité visuelle du lieu.
Cette largeur demande toutefois une bonne anticipation. En effet, la cloison doit pouvoir accueillir un bloc-porte plus large, et l’espace des circulations doit être suffisant pour permettre le débattement. Lorsqu’elle est bien intégrée, elle donne une impression immédiate de générosité, et de confort.
Tableau comparatif des largeurs 63, 73, 83 et 93 cm
Largeur de porte et normes d’accessibilité
Même si toutes les habitations ne sont pas soumises aux normes PMR, la tendance va clairement vers des passages plus larges. Dans les logements destinés à durer ou à évoluer avec la famille, passer sur une porte de 83, ou 93 cm permet d’anticiper les besoins futurs.
L’accessibilité ne concerne pas uniquement les personnes en fauteuil. Elle touche aussi les parents avec poussette, les personnes en perte de mobilité, les déménagements, ou simplement le confort quotidien.
“Une règle simple peut être retenue : plus la pièce est utilisée, plus la largeur de porte doit être confortable. Les portes les plus étroites resteront donc limitées aux pièces techniques.”
Bien choisir la largeur pièce par pièce
Lorsqu’on analyse les besoins pièce par pièce, on observe une logique claire. Les WC, celliers et rangements tolèrent une porte de 63 cm, même si passer à 73 cm apporte souvent un confort évident.
Pour les chambres, le 73 cm reste acceptable, mais le 83 cm devient rapidement un choix plus pertinent pour améliorer l’usage quotidien et anticiper les besoins futurs.

Dans les pièces de vie, les dégagements et les entrées principales, privilégier des largeurs de 83 ou 93 cm améliore non seulement le confort, mais aussi la circulation générale dans le logement.
Plus les portes sont grandes, plus l’intérieur respire, et plus l’ensemble paraît contemporain, surtout lorsque ces portes sont affleurantes et intégrées dans la cloison.
Largeur et type de bloc-porte : l’avantage des solutions La Lourde
Toutes les largeurs ne se comportent pas de la même manière en fonction du bloc-porte. Une porte affleurante, par exemple, exprime pleinement son esthétique lorsque la largeur est généreuse. Une porte de 83 ou 93 cm associée à un dormant affleurant crée une ligne architecturale fluide, discrète et résolument moderne.
Les blocs-portes La Lourde sont conçus pour offrir cette qualité visuelle tout en simplifiant la pose. Chaque modèle est calibré pour s’intégrer dans les épaisseurs de cloison standard, avec des charnières invisibles de haute qualité et un alignement parfait.
Que l’on choisisse une largeur compacte ou une largeur généreuse, les portes La Lourde permettent d’obtenir une finition précise, élégante et durable, adaptée aussi bien aux rénovations qu’aux constructions neuves.
Conclusion
La largeur d’une porte intérieure n’est pas un détail technique, mais un véritable choix d’usage et de confort. Une porte étroite optimise l’espace mais limite l’accessibilité. Une porte plus large améliore la circulation et la qualité de vie au quotidien.
Choisir entre 63, 73, 83 ou 93 cm revient à définir l’ambition du logement : compact, standard, confortable ou accessible. En combinant ces largeurs aux blocs-portes affleurants proposés par La Lourde, on obtient des intérieurs modernes, fonctionnels et harmonieux, où chaque passage contribue à sublimer l’architecture plutôt qu’à la contraindre.



